Раскрой – программа для раскройки листовых материалов: древесно-стружечной плиты, стекла, и т.д. Программа для раскроя ДСП позволяет сократить и оптимизировать расход материала, она производит учет отходов, в том числе «деловых», которые не учитываются при подсчетах стоимости заказа. Утилита может быть использована на предприятиях, занимающихся массовым производством корпусной мебели, для этого в ее функционале введено понятие заказа. Все выполненные заказы автоматически заносятся в базу заказов, впоследствии есть возможность их повторить или изменить. Скачать бесплатно Раскрой вы можете на этом сайте.
Для начала работы с утилитой требуется задать размеры листа и деталей, которые будут из него вырезаться. Далее программа самостоятельно подберет оптимальный вариант раскроя с наименьшим количеством отходов. При необходимости можно воспользоваться имеющейся в программе базе материалов, в которой заложены стандартные размеры листов или рулонов. В этом случае достаточно задать материал для распила, а утилита автоматически будет вести расчет согласно стандартным параметрам листа.
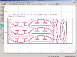
Программа для раскроя работает по двум основным алгоритмам оптимизации расхода ДСП – уменьшение общего отхода и увеличение непрерывного обрезка. Уменьшение общего отхода подразумевает раскрой с минимальным количеством обрезков. Режим увеличения непрерывного обрезка, помимо уменьшения отходов, используется для создания максимального обрезка, который затем можно использовать для другого заказа. Сэкономить на материале также можно, объединив два заказа, если для них применяется один и тот же материал.
Основные достоинства утилиты Раскрой
- Два алгоритма оптимизации раскроя.
- База данных стандартных размеров листов.
- Работа с двумя типами кромки.
- Работа как с листами, так и с рулонами.
- База данных выполненных заказов.
Во время раскроя все резы производятся от одного края листа к другому – либо по горизонтали, либо по вертикали. Материал, расходующийся на распил и другие технологические операции, учитывается при расчете раскроя. Утилита позволяет работать с двумя разновидностями кромки. Программа позволяет оптимизировать расход не только листов, но и рулонов. При необходимости есть возможность использовать Раскрой в сетевом режиме.

